|
|
| 不動産 |
物件名 : 柴田第一ビル406号室
| 住所 |
沿線/最寄り
バス/徒歩 |
賃料
管理・共益費 |
敷金
保証金 |
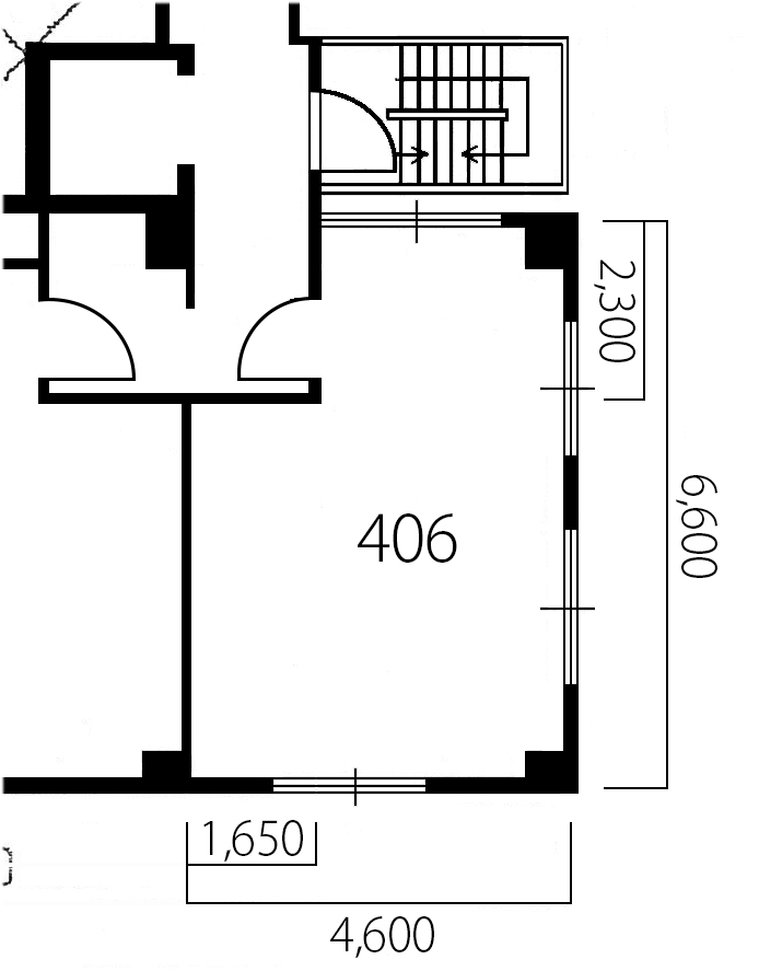
面積 |
大阪市中央区
上本町西3丁目 |
大阪メトロ谷町線/
長堀鶴見緑地線
谷町六丁目 →徒歩約7分
近鉄線/大阪上本町
→徒歩約8分
大阪シティバス/上本町4丁目
→徒歩約1分 |
88,000円
8,000円
(相談可) |
6ヵ月分
(相談可) |
実坪数
8坪
共有部分
2.5坪
契約坪積
10.5坪 |
|
|
Map |

クリックで拡大 |
|
|
| 構造 |
鉄筋コンクリート造 |
| 階建/階 |
5階建/4階 |
| 用途 |
事務所/店舗(飲食不可) |
| 設備 |
エレベーター・冷房・給湯 |
| その他の情報 |
・主要ターミナル駅より乗り換えなしの30分圏内
梅田(東梅田)まで約25分
難波まで約20分
天王寺まで約20分
・近隣コンビニあり(徒歩1分)
・近隣各種金融機関あり
三菱東京UFJ銀行上六支店…およそ700m
三井住友銀行上本町YUFURA店(個人向)…およそ800m
大阪安堂寺町出張所…およそ950m
玉造支店…およそ1.5km
りそな銀行上六支店…およそ800m
みずほ銀行上六出張所…およそ600m
大阪厚生信用金庫上本町支店…およそ730m
天王寺清水谷郵便局…およそ200m
大阪谷町郵便局…およそ350m
・管理人常駐
・24時間使用可
・ネット回線個別契約
・光熱費・消費税別途
・保証金は解約時40%引き(相談可)
・入居可能日:契約後即日 |
|
| 管理会社 |
柴田興産株式会社 |
| 最寄り駅 |
大阪市営谷町線・長堀鶴見緑地線/谷町六丁目
近鉄線/大阪上本町 |
| 所在地 |
大阪市中央区上本町西3-2-6 |
| 電話番号 |
06-6763-0377
担当 柴田 |
| E-Mail |
tatu@shibata-kensetsu.com |
|
|
|